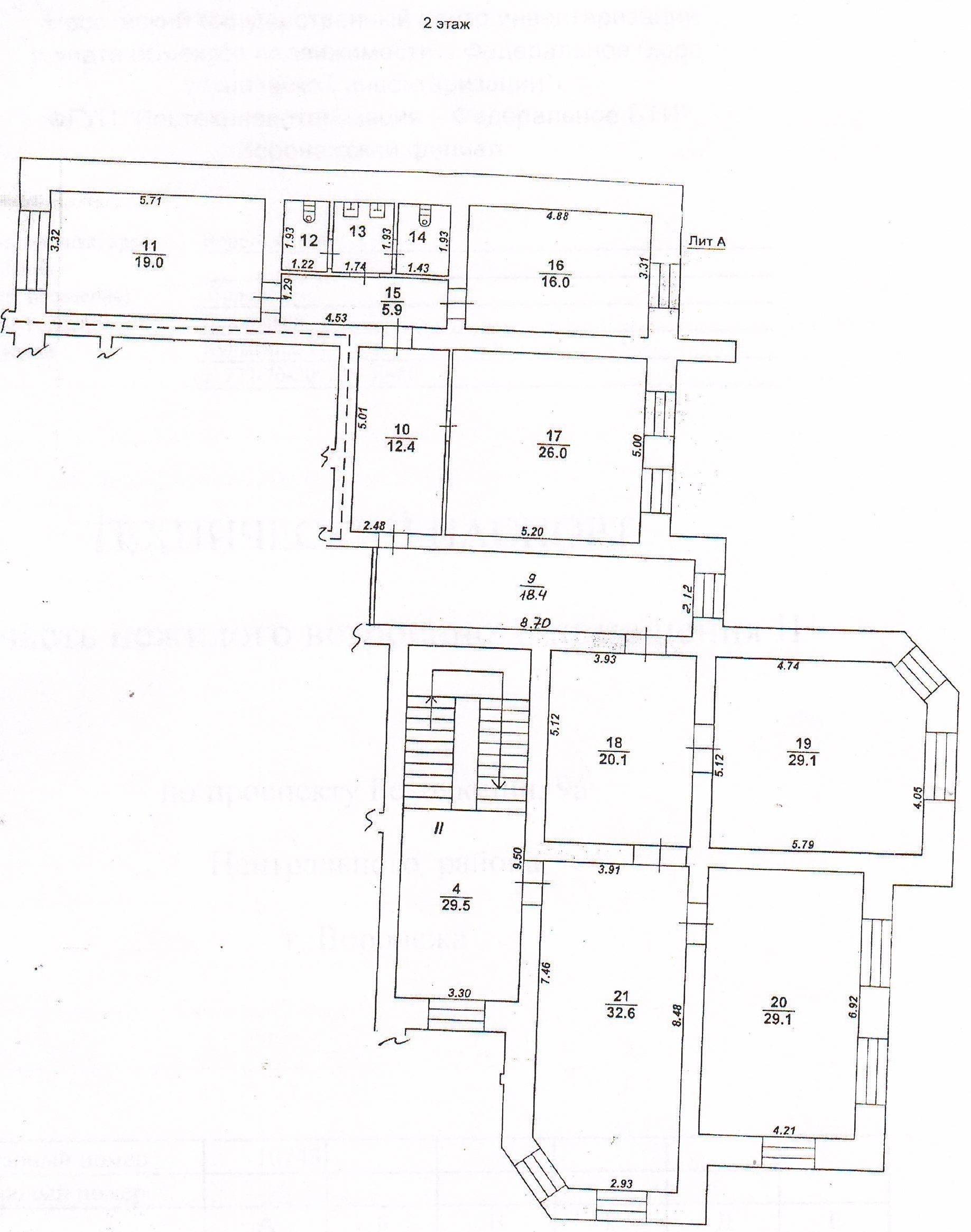
Предлагаются к продаже офисные помещения, расположенные в Центральном районе города Воронежа, вблизи проспекта Революции.

Объект № 12730 28 сентября 2020 11:57

Предлагаются к продаже офисные помещения, расположенные в Центральном районе города Воронежа, вблизи проспекта Революции.

Общая площадь составляет 269,5 кв.м.
Высота потолков 3,35 – 3,5 м.
1 этаж включает в себя:
·         зону Reception;
·         один кабинет.
2 этаж включает в себя:
·         2 комнаты для ведения переговоров;
·         6 кабинетов;
·         Санузел.
Отдельная входная группа с фасада.
Красная линия.
Все центральные городские коммуникации: водоснабжение и водоотведение, отопление, электросеть. Электричество — 120 кВт.
Помещение с современной качественной отделкой.
Проведены:
·         Пожарная и охранная сигнализации;
·         система видеонаблюдения;
·         высокоскоростной интернет;
Имеется свободная парковка вдоль фасада дома.
Очень выгодное и удачное расположение предлагаемого объекта позволяет владеть следующими огромными плюсами:
- Сверхинтенсивный пешеходный трафик;
- Отличная видимость и доступность помещений;
- Высоким рекламным потенциалом и возможностью размещения вывесок.
 
В непосредственной близости и окружении находятся: 
- Большой сложившийся густонаселённый жилой массив 
- Большинство остановок общественного транспорта и маршрутных такси.

Возможен круглосуточный режим работы («24 часа»).
Ограничений и каких-либо обременений нет.
 
 
Любое свободное использование:

·         Медицинский центр
·         Представительский офис
·         Магазин
·         Магазин промышленной группы товаров
·         Кафе
·         Ресторан
·         Банк
 

Фаустова Оксана Владимировна
+7 (961) 029-73-33
564730@inbox.ru

Связаться с нами

г. Воронеж, ул. Кольцовская, 24к, оф. 401
Телефон: +7 (473) 200-88-00
e-mail: info@gsnvrn.ru