Торговое помещение в Советском районе

Объект № 13393 20 мая 2019 12:48
19 000 000 руб.
Площадь: 191 м²
Категория: продажа
Тип: торговые центры / магазины

Предлагаем ВСТРОЕНО-ПРИСТРОЕННОЕ торговое помещение в Советском районе города Воронежа.
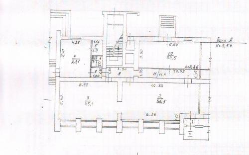
Располагается на первом этаже жилого дома.
Площадь составляет 190,5 м.кв.
Помещение находится на остановке общественного транспорта.
Имеется индивидуальная ВХОДНАЯ ГРУППА.
Помещение С ОТДЕЛКОЙ.
Витражное остекление.
ГОТОВО К ЭКСПЛУАТАЦИИ.
Проведены ПОЖАРНАЯ И ОХРАННАЯ СИГНАЛИЗАЦИИ.
Имеется ПАРКОВКА.
Возможное ИСПОЛЬЗОВАНИЕ:
- ТОРГОВОЕ ПОМЕЩЕНИЕ
- МЕДИЦИНСКОЕ УЧРЕЖДЕНИЕ
- КОСМЕТОЛОГИЧЕСКИЙ САЛОН
- ПАРИКМАХЕРСКАЯ.
ПРЕИМУЩЕСТВА РАСПОЛОЖЕНИЯ:
- расположено в оживленном районе города
- отличная транспортная доступность, связь с другими районами города по основным маршрутам общественного транспорта
- большая проходимость
- интенсивный автомобильный трафик.

Фаустова Оксана Владимировна
+7 (961) 029-73-33
564730@inbox.ru

Связаться с нами

г. Воронеж, ул. Кольцовская, 24к, оф. 401
Телефон: +7 (473) 200-88-00
e-mail: info@gsnvrn.ru